Проект будинку “Ластівка 15”
Двоповерховий будинок з гаражем, балконом та терасою:
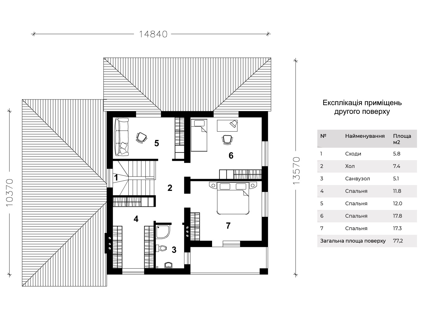
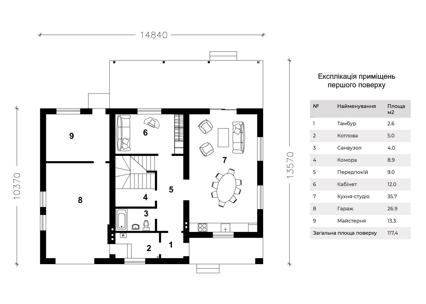
- Загальна площа: 195 м²,
- Загальна площа без гаражу та підвалу: 168.1 м²,
- Площа гаража: 26.9 м²,
- Габарити будинку: 14.84 м х 13.57 м.
КОНСТРУКЦІЇ:
- Фундаменти: Стрічкові монолітні залізобетонні,
- Зовнішні стіни: Цегла 380 мм + утеплювач 150 мм,
- Перекриття: Залізобетонні панелі,
- Покрівля: Скатна.
До складу робочого проекту входять:
- пояснювальна записка в якій дан опис основних характеристик будинку та основних конструкці і застосованих матеріалів.
- Схема забудови ділянки з нанесеним будинком і відступами від меж ділянки.
- Плани першого та другого поверхів на яких вказані всі необхідні розміри, товщини стін і перегородок, відстані до дверей і вікон, розміри кімнат. Також на планах показано розташування вентиляційних та димових каналів.
- Чотири фасади. На фасадах вказані висота цоколя і покрівлі, відмітки дверей і вікон.
- Два розріза. На розрізах показана висота приміщень, віконних і дверних прорізів, підвіконь. Описаний склад перекриття між поверхами та підлоги.
- План покрівлі на якому показано розташування вентиляційних та димових труб.
Конструктивна частина проекту складається з:
- креслень фундаментів що включають в себе плани фундаментів, розрізи фундаментів, по кожній стіні на яких показано глибина закладення фундаментів, схеми арматурних каркасів, специфікацію матеріалів необхідних для влаштування фундаментів.
- Планів перекриттів 1 та 2 поверхів, на якому відображені розкладка залізобетонних панелей перекриття, вказані монлітні ділянки та необхідні вузли та деталі, дан перелік матеріалів.
- Креслення перемичок і монолітних поясів включають в себе плани поясів та перемичок, з зазначенням місць розташування перемичок, специфікації матеріалів.
- Креслення покрівлі, що включають в себе план крокв, з переліком елементів, розрізи покрівлі, на якому вказані розміри основних елементів, перелік необхідних матеріалів.
Робочий проект надається у двох екземплярах.
Додатково надаються “Ескізні наміри забудови” які складаются з планів, фасадів, розрізу та схеми забудови ділянки. Ці креслення будуть необхідні для отримання будівельного паспорту.
Перелік необхідних матеріалів замовник отримає під час придбання проекта.






