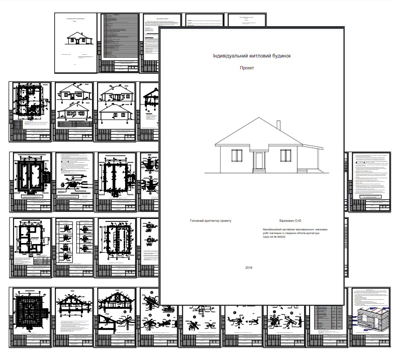
Проект будинку “Соля”
Одноповерховий чотирикімнатний будинок:
- Загальна площа: 121 м²
- Габарити будинку: 11.0 м х 13.3 м
КОНСТРУКЦІЇ:
- Фундаменти: Стрічкові монолітні залізобетонні,
- Зовнішні стіни: Газобетонний блок 375 мм,
- Перекриття: Дерев’яні балки, Нема,
- Покрівля: Скатна,
- Покрівельне покриття: Металочерепиця.
Будинок складається з трьох житлових кімнат, вітальні об’єднаної з кухнею, двох санвузлів та котельні. Один з санвузлів приєднаний до спальні господарів.
При спальні господарів знаходиться гардеробна. До будинку приєднана тераса.
У котловій передбачена можливість встановлення газового та електричного котла або теплового насосу. До речі, тепловий насос – це електроприлад, що дозволяє значно зекономити витрати на опалення. Вхід до котельні з тамбура.
Фундаменти будинку розроблені для складних грунтів з високим рівнем грунтових вод. Фундаменти стрічкові, з монолітного бетону по піщаній подушці.
Конструкцію фундаментів необхідно скорегувати згідно геологічних вишукувань на місці будівництва.
Зовнішні, та внутрішня стіни будинку з газобетонних блоків товщиною 375 мм, клас міцності В 2,5, D 400. Перегородки з газблоків товщиною 100 мм. Перекриття будинку – дерев’яні балки з утепленням мінватою 350 мм. Покрівля чотирьохскатна. Покрівельне покриття-бітумна черепиця.
До складу робочого проекту входять:
- пояснювальна записка в якій дан опис основних характеристик будинку та основних конструкці і застосованих матеріалів.
- Схема забудови ділянки з нанесеним будинком і відступами від меж ділянки.
- Плани першого та другого поверхів на яких вказані всі необхідні розміри, товщини стін і перегородок, відстані до дверей і вікон, розміри кімнат. Також на планах показано розташування вентиляційних та димових каналів.
- Чотири фасади. На фасадах вказані висота цоколя і покрівлі, відмітки дверей і вікон.
- Два розріза. На розрізах показана висота приміщень, віконних і дверних прорізів, підвіконь. Описаний склад перекриття між поверхами та підлоги.
- План покрівлі на якому показано розташування вентиляційних та димових труб.
Конструктивна частина проекту складається з:
- креслень фундаментів що включають в себе плани фундаментів, розрізи фундаментів, по кожній стіні на яких показано глибина закладення фундаментів, схеми арматурних каркасів, специфікацію матеріалів необхідних для влаштування фундаментів.
- Планів перекриттів 1 та 2 поверхів, на якому відображені розкладка залізобетонних панелей перекриття, вказані монлітні ділянки та необхідні вузли та деталі, дан перелік матеріалів.
- Креслення перемичок і монолітних поясів включають в себе плани поясів та перемичок, з зазначенням місць розташування перемичок, специфікації матеріалів.
- Креслення покрівлі, що включають в себе план крокв, з переліком елементів, розрізи покрівлі, на якому вказані розміри основних елементів, перелік необхідних матеріалів.
Робочий проект надається у двох екземплярах.
Додатково надаються “Ескізні наміри забудови” які складаются з планів, фасадів, розрізу та схеми забудови ділянки. Ці креслення будуть необхідні для отримання будівельного паспорту.
Перелік необхідних матеріалів замовник отримає під час придбання проекта.






